Технологическое проектирование предприятий общественного питания и пищевых производств
Специалисты ООО «ЦНД «ТЕХУСЛОВИЯ» более 10 лет занимаются технологическим проектированием предприятий пищевой промышленности и общественного питания.
Проектирование на начальном этапе работ помогает избежать фатальных ошибок и сэкономить деньги, время и нервы, помогает оценить свои финансовые возможности и довести дело до конца, визуализировать свой проект и осуществить мечту!
Мы имеем большой опыт в работе со встраевыми производствами в уже существующие здания с определённой планировкой с ее минимальными изменениями. При этом мы осуществляем планировку производства с учетом последовательности производства, с отсутствием пересечений «грязных» и «чистых» потоков и соблюдений норм технологического проектирования.
• Наши инжерены-технологи проконсультируют Вас при выборе помещения для производства.
• Подберут оборудование или внедрят при проектировании уже купленное оборудование .
• Учтут индивидуальные особенности предприятия: график работы, ассортимент выпускаемой продукции, количество персонала, особенности технологии производства, желаемую производственную мощность предприятия.
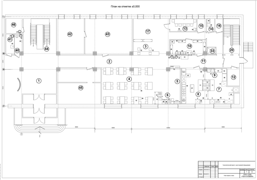
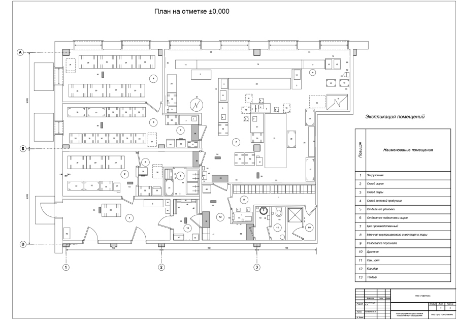
В комплект технологического проектирования входит:
- строительный чертеж разметкой помещений, коммуникациями, экспликацией помещений
-технологический чертеж с расстановкой оборудования
-спецификация на оборудование технологическое, вспомогательное
- пояснительная записка к проекту с описанием комплектации цехов, складов, вспомогательных и бытовых помещений.
К примеру так:
1. Общие положения
2. Характеристика проектируемого предприятия
3. Организация производства
3.3 Подготовка сырья
3.4 Овощной цех
3.5 Доготовочный цех
3.6 Цех по производству десертов и мучных изделий
3.7 Моечная цеха по производству десертов и мучных изделий
3.8 Горячий и холодный цех
3.8 Моечная оборотной тары
3.9 Помещение для хранения уборочного инвентаря и приготовления дез. растворов
4. Требования к водоснабжению и канализации предприятия
5. Требования к отоплению и вентиляции предприятия
6. Требования безопасности производства
7. Охрана и гигиена труда на предприятии
Наши специалисты выезжают на объект для снятия размеров и сбора информации или работают по уже существующим планам БТИ, входным данным по коммуникациям (вентиляция, водоснабжение, канализация). Сроки проектирования зависят от объёма и сложности работ.




